Der Vermittler, Kevin Elifov
Inhalt
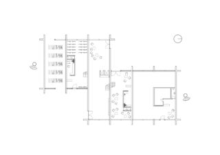
Motivation dieses Wohnbaus ist es, zwischen dem Straßen- und Parkraum zu vermitteln. Die Erdgeschoss-Ebene ist tragwerkstechnisch soweit reduziert, dass der Raum der Öffentlichkeit zurückgegeben wird und sie den Blick durch das Gebäude gewährt. Innerhalb des Gebäudes passen sich halböffentlicher und privater Raum gegenseitig an und ergänzen sich räumlich.