Gemeinschaft auf Zeit, Nadine von Mengden
Inhalt
Der Künstler, der Pendler, der Tänzer, Koch, Student, Grafiker, das junge Paar und die Familie… sie alle kommen zusammen in den fünf Hubs am neuen Stöckach.
Wohnen und arbeiten in denselben vier Wänden, ob temporär oder permanent, ist für die meisten Menschen mittlerweile alltäglich. Besonders spürbar wird dies in den Städten – leerstehende Bürogebäude besetzen ganze Quartiere.
Auf der anderen Seite gibt es den Trend zum alleine Leben – nicht nur junge Studenten, sondern auch alleinstehende Erwachsene und ältere Menschen gehen diesem nach. Wo früher Wohnraumnachfrage für junge Familien und Paare die Regel war, sind heute multifunktionelle, flexible Wohneinheiten gefragt. Dabei ist die gebaute Umgebung gefordert auf diese Nutzungsvielfalt in einem Gebäude zu reagieren und einen für diese Zwecke angemessenen Raum zu schaffen.
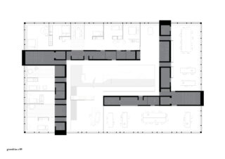
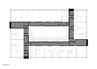
Der Entwurf setzt sich mit dieser oben erwähnten Herausforderung auseinander. Die strenge Anordnung weniger, massiver Wände, die die Gebäude tragen, beinhalten alle dienenden Funktionen, die in den jeweiligen Hubs erforderlich sind. Diese bedienenden Räume in der Wand bespielen und moderieren die großzügigen Flächen zwischen den Wänden. Wie die Wand den Raum auf beiden Seiten bespielt, hängt davon ab, wie die Nutzer sich das System aneignen. Die Flächen können als Atelier, Büro, Praxis, Wohnung, etc. ausformuliert werden und bieten somit Ausgangssituationen für die Aneignung heterogener Bewohner und Gäste innerhalb eines Gebäudes. Die Wände stehen immer in Beziehung zueinander und bilden in der Gebäudemitte temporäre und permanente Gemeinschaften. Diese werden in den verschiedenen Hubs unterschiedlich ausformuliert und reagieren somit auf die jeweiligen Nutzungsschwerpunkte. Die zur Fassade gerichteten Wandseiten moderieren die zellulären Ränder des Gebäudes, in denen lediglich die Besitztümer kuratiert werden – das Leben spielt sich im Gebäudekern ab. Das hier verstärkt ausgearbeitete Design Hub zeichnet sich durch radial gerichtete Sphären des Teilens aus, welche unterschiedliche Gemeinschaftsgrößen hervorrufen. Die Wohn- / Arbeitsgemeinschaft wird von der Wand zur Fassadenseite hin moderiert, die Stockwerksgemeinschaft in der, ist von den Wänden umgeben und umfasst drei Geschosse. Die Hausgemeinschaft als vertikale Nachbarschaft durch das ganze Gebäude und letztendlich die Quartiersgemeinschaft, die durch Gelegenheitsstrukturen der Begegnung im Erdgeschoss Teil des Hubs wird. Hier wird der Charakter der verschiedenen Hubs, erzeugt durch die Aneignung der heterogene Bewohnerschaft auf für die Öffentlichkeit spürbare weise erzeugt.