Zum Inhalt springen

»Kropp och Själ«, the extension of Gunnar Asplund’s City Library, will be a unique and innovative combination of sauna and library, creating an easily accessible area in the centre of Stockholm.

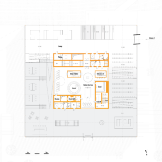
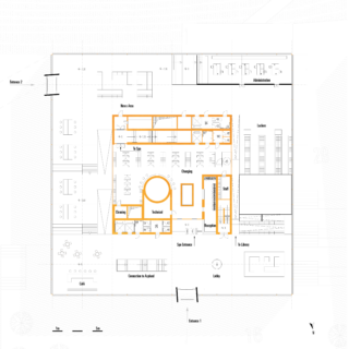
The layout of the building is relatively simple, with the sauna in the centre, surrounded by the library. This arrangement makes it an »inside-out« Asplund, who placed the library hall in the centre of the building.

The synergy is created by the visual relationships between the different parts of the building. From the sauna area you can see the old library building through the new library area. (Visualisation)

The library represents the space for intellectual growth and spiritual development, while the sauna focuses on physical relaxation and health.

So if you ever feel unbalanced, the path to balance is just around the corner.

An dieser Stelle ist ein externer Inhalt von Vimeo eingebunden. Durch das Ansehen des Inhalts hat der externe Anbieter Zugriff auf Ihre Daten. Weitere Informationen finden Sie in unseren Datenschutzhinweisen.

No Preview
Concept Film

An dieser Stelle ist ein externer Inhalt von Vimeo eingebunden. Durch das Ansehen des Inhalts hat der externe Anbieter Zugriff auf Ihre Daten. Weitere Informationen finden Sie in unseren Datenschutzhinweisen.

No Preview
Model 360

Kontext