Vielfalt und Ordnung, Jakob Schlipf
Inhalt
Kopiert oder Spiegelt man einen Gegenstand entlang einer Achse erhält man einen Zustand des Gleichgewichts. Trifft eine solch strenge mathematische Geometrie auf die Dynamik des Lebens entstehet eine Vielzahl an Interpretations- und Aneignungsmöglichkeiten.
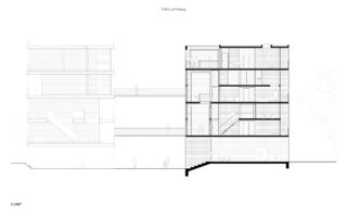
Der Entwurf setzt sich mit dem Zusammenkommen der formalen Strenge der Wiederholung und der Dynamik des Wohnens auseinander. Die Reihung der Wohneinheiten entlang einer längs zum Gebäude laufenden Erschließungsachse sind durch Schotten gerastert. Diese parallel zueinander laufenden, tragenden Wände bilden die primäre Gebäudestruktur und sorgen für die starke Richtung die sich vom Block- Innenhof zur Gemeinschaftsfläche vor den Wohnungen ergibt. Die kleinste Einheitsgröße bildet der Bereich zwischen zwei Schotten – der private Raum begrenzt sich auf das Minimalste. Die fast endlos wirkende Wiederholung dieser Wandscheiben lässt jedoch durch dessen Gruppierung und das zusammentreffen mit sekundären Strukturen als innere Haut eine enorme Vielzahl an Wohnmöglichkeiten zu. Durch Hinzufügen einer nebenliegenden Schotte oder Ausbreitung in die Höhe kann der Raum durch die Bewohner flexibel angeeignet werden. Die Gemeinschaftsbereiche an der Nordseite des Riegels sind mit dem Bestandsgebäude verbunden und werden mit der Höhe des Gebäudes größer – der Raum in der eigenen Wohnung dadurch kleiner. So entstehen über die Stockwerke hinweg unterschiedliche Atmosphären und Arten des Zusammenkommens. Der Gemeinschafts- und Erschließungsraum ist durch die Eingänge zu den Wohneinheiten reliefiert wodurch der lange Raum vor den Wohnungen gegliedert wird und Gemeinschaften unterschiedlicher Größe entstehen.