Zum Inhalt springen

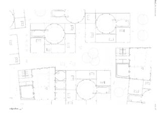
Ausgangspunkt der Arbeit ist die Auseinandersetzung mit der Bank of England von John Soane. Aus dieser Fallstudie wurde die dominierende Wand-Raum-Konfiguration als Ausgangselement herausgelöst und editiert.

 

Durch spiegeln, verschieben, skalieren und multiplizieren des Segmentes wurden räumliche Strukturen geschaffen bis schließlich ein schlüssiges Wand-Raum-System entstand, welches sich in der Fläche ausbreitet.

 

Auf Basis dessen wurden Räume gemeinschaftlichen Zusammenlebens und Räume des Rückzugs im Kontext des ländlichen Raums entworfen. Hierbei moderiert die Architektur die Handlungsabläufe nach dem Prinzip ‘Vita Activa, oder vom tätiges Leben’ (Hannah Arendt). Das Individuum stellt demnach her, denkt nach, spielt und handelt politisch.

 

Die Struktur der Räume setzt sich aus zwei sich gegenüberstehenden Handlungsfeldern zusammen. Dem der Haushalte und dem der Marktplätze. Die verschiedenen Haushalte werden addiert und bilden einen Ort zur Selbstverwirklichung. Tätigkeiten des Nachdenkens und Herstellens finden in diesem Kosmos statt.

 

Die Marktplätze bilden ein Netzwerk des öffentlichen Raumes. Hier wird (politisch) gehandelt, sowie ungezwungen gespielt. Anders als im Haushalt steht hier nicht das Individuum im Vordergrund, sondern die Gemeinschaft. Es werden Gelegenheitsstrukturen für das gemeinschaftliche Handeln und die Interaktion der Haushalte geschaf